Nós usamos cookies para melhorar a experiência de utilização no nosso site.
Ao utilizar o website, confirma que aceita o uso de cookies. Saber mais

Lote para moradia geminada para Compra 52 000 €

Campo e Sobrado, Valongo (Porto)

Voltar
T/00324
266 m² (bruta)

Descrição

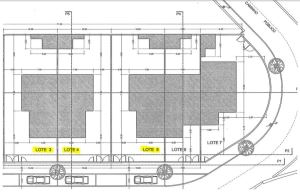
Vende-se 3 Lotes de Terrenos com 266,70 m2/cada, com projeto para construção de moradia de cave + R/C + Andar + anexo, em zona tranquila e sossegada , a 8 min da A41 (de carro), 1 2 min do centro de Valongo, perto da escola de EB2 Fijos, junto à loja do Euro e dos cafés.

Obras de Urbanização: Rede Telefónica, rede de gás, água, Saneamento, eletricidade, zona verde, passeio e baías de estacionamento.

São 3 Lotes de Terrenos para a venda para construção de Moradias do tipo: Germinada (cave + R/C + Andar + anexo) de 3 frentes.

Cada Lote tem um área de 266,70 m2 e o preço de 52.000,00€ (cada)

Garanta já a oportunidade de visitar este excelente imóvel!

Gostamos de ajudar os compradores encontrar a sua casa de sonho e/ou o seu melhor investimento. É por isso que trabalhamos com cada cliente de forma personalizada, dedicando o tempo necessário para entender as suas necessidades. Habituamos-nos a trabalhar com pessoas que estão a comprar uma casa e gostaríamos de lhe mostrar de que forma o poderá fazer.

QUANDO ESCOLHE os nossos serviços OBTÉM:

- Um agente imobiliário com a melhor formação do mercado - Visualização das casas com antecedência - Informação sobre novas casas no mercado - Informação sobre outras casas vendidas e por que valores - Apresentação das melhores soluções financeiras para aquisição do imóvel - Apoio no processo de financiamento (se requerido) - Presença na avaliação do imóvel - Apoio na marcação e realização do CPCV (Contrato Promessa Compra e Venda) - Apoio na marcação e realização da escritura pública de compra e venda.

Características

Divisões

    Enquadramento

    • Escolas;
    • Transportes públicos;
    • Supermercados e comércio;
    • Localização:
      • Periferia;
    • Vistas:
      • Serra;
      • Campo;
      • Áreas verdes;
    • Zona envolvente:
      • Residencial;

    Localização

    Ranito & Marques Imobiliária

    Ranito & Marques Real Estate, Lda.

    Avenida Central de Gandra, 1508
    4585-116, Gandra

    n/d

    http://www.imorm.pt

    L. AMI: 15715

    ver detalhes

    Pedido de Informações

    © 2017 Casa e Sol. Todos os direitos reservados
    Powered by Improxy, Designed and Developed by Improxy